Oportunidade: Andar moradia t3 remodelado no coração do infantado

295 000€

  • 4
  • 3
  • 1
  • Útil: 118m2
  • Bruta: 118m2
  • C.E.: D
  • Ano: 1976
  • Orientação Solar: Nascente, Sul, Poente
  • Ref: 64277-COLI60752

Localização

Lisboa, Loures, Loures, Loures

VR Tour

Descrição

Este andar de moradia esta situado numa zona muita calma e tranquila a 2m do loures shopping.
E um t2 transformado em t3,todo remodelado. Este apartamento ainda tem agregado um anexo todo remodelado com cozinha.
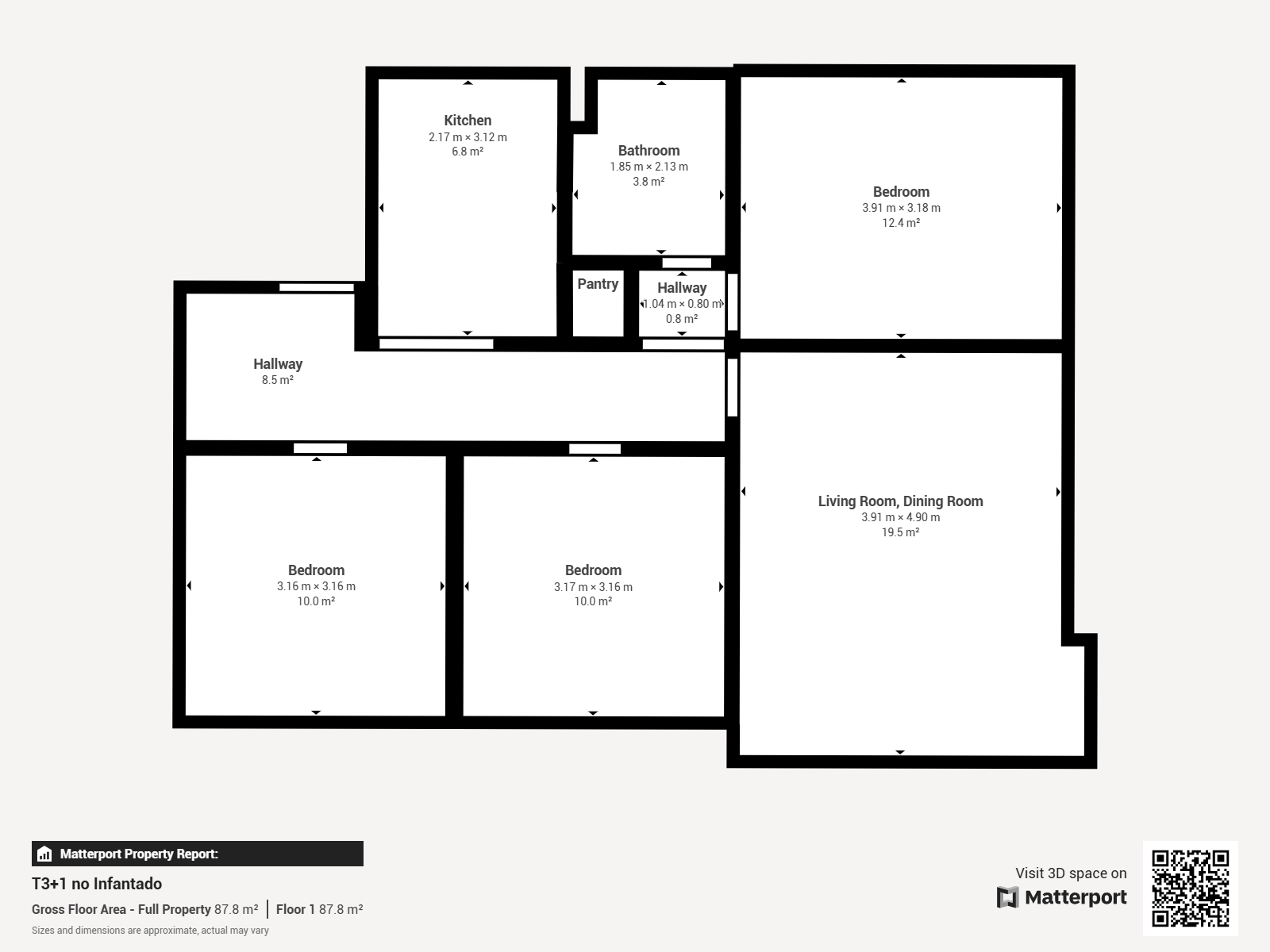
É composto por:
3 quartos
1 WC
Corredor com acesso a todas as divisões
Cozinha toda equipada
Termoacumolador,e fogão com placa eléctrica.
Dispensa
1 sala com muito boa exposição solar.
O apartamento tem ainda interligação para o serviço de internet/TV, onde poderá aceder em todas as divisões da casa.
Boa exposição solar.
Tem ainda um anexo remodelado, e arrecadação privada com WC que fica na parte inferior da moradia.
Box privada para 1 viatura.
Escola publicas a 100m,como o Aldi a 200/300m.
A zona tem muito comércio em seu redor,como colégios privados,ginásios, mercearias,cafés,cabeleireiros e outros.
Acessos a vias rápidas,como auto estrada,tudo num raide de 500m.
Mais do que uma casa, um estilo de vida!
Descubra este andar moradia no infantado e surpreenda-se.
Marca já a tua visita.

Atributos

  • Janelas vidro duplo
  • Terraço
  • Cozinha Equipada
  • Sala de estar
  • Arrecadação
  • Estacionamento incluído
  • Internet (WiFi)
  • Garagem (Box)
  • Água Canalizada
  • Caldeira
  • Vista Desafogada
  • Vistas Exteriores
  • Despensa
  • Boa Exposição Solar
  • Cave
  • Portão exterior manual

Divisões

Plantas

Nome do piso: Piso 0

Divisão Área Nota
Quarto
Quarto
Quarto
Sala
Cozinha
WC
Corredor
Despensa
Arrecadação
Box
Cave
Hall de Entrada